Kuvagalleria
(1/5)
Valmis, ulkosauna 26
Myydään15 990 €
Kuvaus
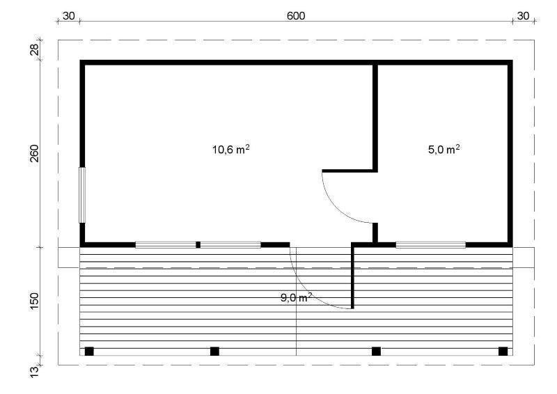
moderni 26 sauna , valmiiksi kasattu,seinän paksuus 70mm, sauna valmis, sis, lauteet,kiukaan ,piipun, vesisäiliön, savupelti piipussa,kiukaan suojat,,veden poisto ränni lattiassa,terassi,käsitelty ulkoapäin suojaaineella,,yläpohjassa eristys,hinta ennen 17900 ja nyt tarjous 15990, /tarjous on voimassa 28,4,-26 ,toimitetaan valmiiksi kasattuna paikkaan minne pääsee nosturiautolla,kysy kuljetus tarjousta, 0401616666
Huom! Painike, joka näyttää koko kuvauksen on pelkästään visuaalinen.
Sijainti
| Ilmoituksen tunnus | 14112795 |
|---|---|
| Viimeksi muokattu | 20.4.2026 klo 8.02 |




