
Kuvagalleria
(1/3)
SteyrTek 2-pilarinostin ST-T60EB Lattiavapaa
Myydään4 399 €
Kuvaus
SteyrTek 2-pilarinostin ST-T60EB Lattiavapaa sähkömagneettisella turvalukituksella
SteyrTek ST-T60EB Kaksipilarinostin lattiavapaa versio
PITKÄT 1,9 metriset kolmiosaiset nostokäpälät kevyiden kuorma-autojen, pakettiautojen ja pitkien maastureiden nostoon.
Nostin on staattsesti CE-turvatestattu 80% ylipainolla (normaali CE-testi 50% ylipainolla). SteyrTek on dynaamisesti testattu 38% ylipainolla (normaali CE-testi 15% ylipainolla). SteyrTek rakentaa nostimet turvallisuus ensin periaatteella. SteyrTek käyttää normaalia suurempia turvallisuusmarginaaleja.
Tässä mallissa lattia jää täysin vapaaksi, mikä helpottaa auton ajoa nosturille. Hydrauliikkaletkut ja tasausvaijerit kiertävät yläkautta. Automaattinen turvakatkaisin estää kattovauriot.
Sähkömagneettinen turvalukitus. Varajärjestelmänä manuaalinen lasku. Lukitus ei tarvitse paineilmaa.
Pitkäikäisen ja kuumuuttakestävän nostokelkan nylon-liukupinta on voiteluvapaa makromolekyylirakenteensa ansiosta.
Asennus vähintään 300 mm teräsbetonilattialle. Mitään valuun asennettavia kiinnikkeitä et tarvitse. Lattiaan porataan 16 reikää, joihin nosturi kiinnitetään pulteilla (kiila- tai kemiallinen ankkuripultti). Jos lattiavalu on tehty vahvemmilla teräksillä tai kaksikerrosteräksillä ja lujemmalla betonilla, reilusti puolta ohuempikin lattia riittää.
Nostovarsien sivuttaissuuntainen lukitus dynaamisella hydrauliikkapaineella varmistaa turvallisen ja vakaan noston.
Nostovarsien asymmetrisen rakenteen ansiosta ovien avaamiselle jää tilaa. Lisäksi ovien kolhusuoja molemmissa nostokelkoissa ehkäisee kolhuja.
Kaksoishydraulisylinterien voima siirretään nostokelkkoihin ketjulla, jossa on viisinkertainen varmuusvara.
Toimintavarma mekaaninen nostontasausjärjestelmä teräsvaijereilla varmistaa, ettei auto pääse kallistumaan nostettaessa.
Runkomateriaalin laserleikkaus yhdestä kappaleesta varmistaa tasaisen laadun.
Dynaaminen kaksoissylinterirakenne takaa toimintavarmuuden.
Säädettävät nostotallat mahdollistavat erityyppisten autojen noston helmoja vaurioittamatta.
Helppokäyttöinen luotettava ja pitkäikäinen mekaaninen turvalukitus, johon ei tarvita paineilmaa.
Korkea laatu ja vahva rakenne tekevät SteyrTekistä vakaan ja luotettavan.
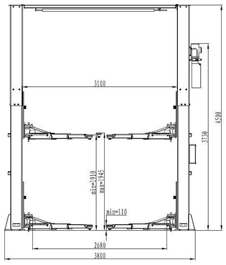
Käpälien korkeus maasta ala-asennossa 110 mm
Nostimen malli
ST-T60EB
Nostimen kokonaispaino
1400 kg
Nostokyky
5000 kg
Nostokorkeus
1910 mm
Korkeus ala-asennossa
110 mm
Nostimen korkeus
4500 mm
Nostimen leveys
3800 mm
Nostoaika
55 s
Laskuaika
n. 55 s
Virtalähde
3/N/PE~380V, 50Hz,10A
Moottoriteho
3 kw
Hydrauliöljyn määrä
12L
Käyttölämpötila
5-40
Työskentely kosteus
30-95%
Äänitaso
< 70db
Varastointi lämpötila
-25~55
Suurten tuotteiden rahti 49,90 eur/tilaus. Voit tilata samaan rahtiin rajoittamattoman määrän koneita ja tarvikkeita.
Huom! Painike, joka näyttää koko kuvauksen on pelkästään visuaalinen.
Sijainti
| Ilmoituksen tunnus | 16336195 |
|---|---|
| Viimeksi muokattu | 8.9.2025 klo 10.02 |









