Kuvagalleria
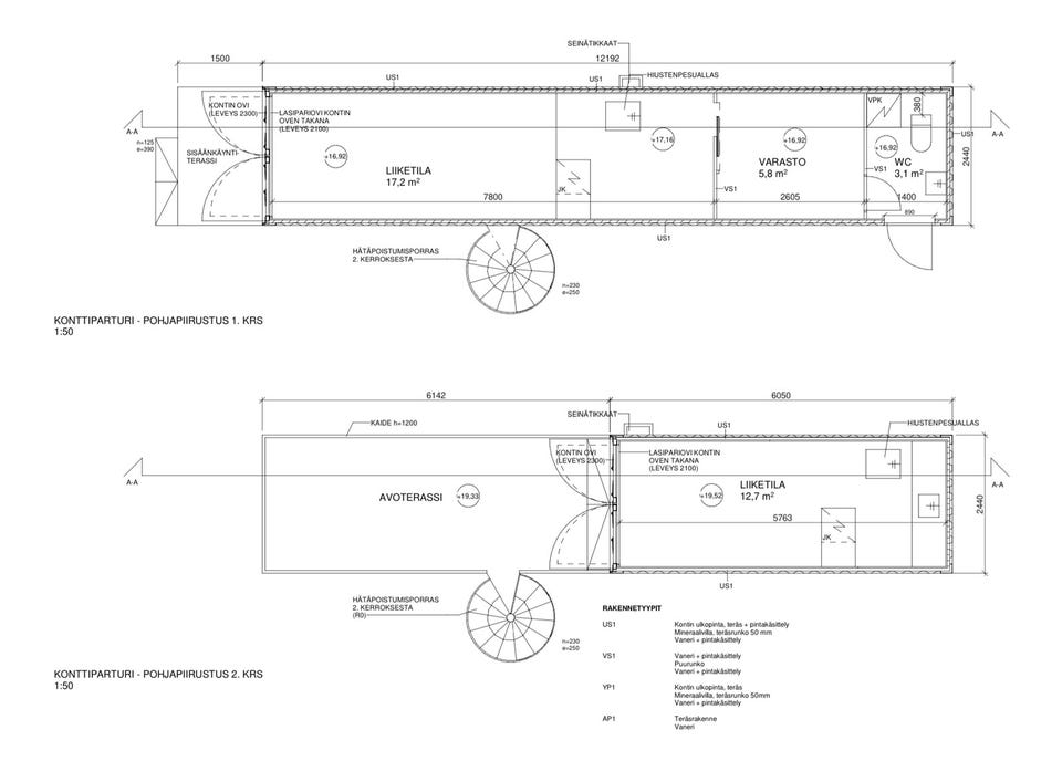
Merikontti x 2 yhdistelmä
Myydään
15 500 €
Tuotteen kuvaus
Kunto: Hyvä
40” HC ja 20” HC erikoiskorkeat ja eristetyt kontit.
Valmis aihio toteuttaa mitä vain lämmintä tilaa!
Varustelu:
50mm finfoam kaikilla pinnoilla ja pinnassa valk. Osb levytys.
Molemmissa konteissa päädyssä lasipariovet ja 40” kontissa sivulla takana ylimääräinen käyntiovi.
Sähköpatterit.
40” vahvistettu puolestavälistä,jotta kantaa ylemmän kontin painon.
Vesi ja viemäröinti valmius.
Sähkövalmius.
Wc sisältää 3kw/100l lämminvesivaraaja ,wc istuin ja pesuallas,repijäpumppu.
Kierreportaat.
Terassilaudoitus paikallaan,mutta kaiteet poistettu kuljetuksen vuoksi.
Kesämökiksi/varastoksi/toimistoksi…mitä vain
Käyttäjäprofiili
Kirjaudu sisään, jos haluat nähdä profiilin ja lähettää viestejä.
Kirjaudu sisäänIlmoituksen metatiedot
Viimeksi muokattu: 7.4.2026 klo 20.53 ・ Ilmoituksen tunnus: 6310196







