
Kuvagalleria
(1/5)
Taukovaunu 6hlö + WC 12850e
Myydään12 850 €
Kuvaus
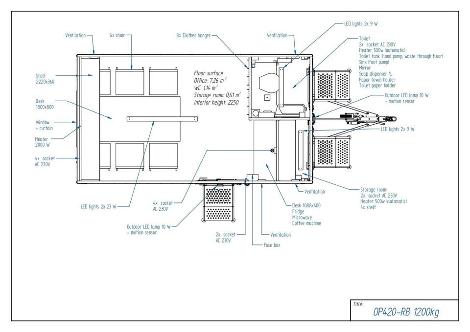
Monipuolinen vaunu ympärivuotiseen käyttöön. Kolme erillistä huonetta: työhuone/ruokailuhuone, työkaluhuone ja wc. Seinät ja katto on valmistettu lasikuitulaminaatista, jossa on XPS-lämpöeristys. Turvallisuuden takaamiseksi perävaunussa on laminoidut karkaistut ikkunat ja rullaverhot. Ruostumattomasta teräksestä valmistetut oven saranat lisäävät ovien murtolujuutta ja turvallisuutta. Ulkovalaistus on varustettu liike- ja hämärätunnistimilla.
Vakiovarusteet
Lattia on XPS-lämmöneristys, PVC-pinnoite
Seinät lasikuitulaminaatista, XPS-finnfoam
Lasikuitulaminaatista valmistettu katto, XPS finnfoam, vesikourut
Virtakaapeli 16A, 25m
Nokkapyörä
LED-sisävalaistus
Säädettävä ilmanvaihto
Ovissa kaksinkertaiset tiivisteet
Masterkey-järjestelmä (kahta tai useampaa lukkoa voidaan käyttää samalla avaimella)
Rullaverhot
Kulmatuet 4kpl
Tasapainotetut M+S-renkaat
Metalliset lokasuojat
LED-ulkovalaistus liiketunnistimella
Pistoke 13 napainen
TOIMISTO + KEITTIÖ
3-askelmainen kuumasinkitty portaikko
Pöytä 1800 x 800 mm
Ruokapöytä 1100 x 400 mm
Tuolit 6kpl
Hylly 2200 x 360 mm
Naulakko
Sähköpatteri 2000W
Pistorasiat 220V x 10
VARASTO HUONE
3-askelmainen kuumasinkitty portaikko
Hyllyt 4kpl
Sähköpatteri 500W (termostaatilla)
Pistorasiat 220V x 2
WC
3-askelmainen kuumasinkitty portaikko
Kemiallinen wc, tyhjennys vaunun alta
WC-paperiteline
Vessaharja
Pesuallas jalkapumpulla + makeavesisäiliö 48 l
Käsipyyheannostelija
Nestesaippua-annostelija
Peili
Roskakori
Sähköpatteri 500W (termostaatilla)
Pistorasiat 220V x 2
Kaappivaunu
Umpikorikärry
Peräkärri
Peräkärry
Traileri
Kärry
Trailertukku
Turun Trailertukku
Helsingin Trailertukku
Pirkanmaan Perävaunumyynti
Huom! Painike, joka näyttää koko kuvauksen on pelkästään visuaalinen.
Lisätietoja
- Kunto
- Uusi
Sijainti
| Ilmoituksen tunnus | 16432808 |
|---|---|
| Viimeksi muokattu | 15.4.2025 klo 16.31 |





