Kuvagalleria
(1/6)
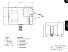
Siirrettävä työmaa- tai toimistovaunu valkoisella ulkokuorella
Myydään
Myyjä ei ole vielä aktivoinut ToriDiiliä. ToriDiili on Torin uusi maksu- ja kuljetuspalvelu, jolla kotiutat torilöydöt nopeasti ja turvallisesti. Lue lisää
Tuotteen kuvaus
Kunto: Hyvä
Myydään / Vuokrataan työmaakoppi – Masetti, 4 hlö + erillinen WC
Myydään tai vuokrataan siisti ja toimiva Masetti-työmaakoppi, joka soveltuu erinomaisesti työmaan tauko- ja sosiaalitilaksi.
Koppi on mitoitettu 4 hengelle ja siinä on erillinen WC, mikä tekee siitä käytännöllisen ja mukavan päivittäiseen käyttöön.
Varustelu:
• Jääkaappi
• Mikroaaltouuni
• Kahvinkeitin
• Pöytä
• 4 tuolia
Koppi on heti käyttövalmis ja sopii hyvin rakennus-, infra- tai saneerauskohteisiin.
📍 Sijainti: Nurmijärvi
💰 Hinta: 5000€/sis. Alv/270€kk
📦 Saatavuus: [heti / sopimuksen mukaan]
Ota yhteyttä ja kysy lisätietoja!
Huom! Painike, joka näyttää koko kuvauksen on pelkästään visuaalinen.
Käyttäjäprofiili
Kirjaudu sisään, jos haluat nähdä profiilin ja lähettää viestejä.
Kirjaudu sisäänIlmoituksen metatiedot
Viimeksi muokattu: 31.1.2026 klo 9.04 ・ Ilmoituksen tunnus: 16536063