C30 Työmaatiloja, Työmaakopit, toimistokontti, parakki Ym 9x3.3m Tai 9x3m
Myydään3 720 €
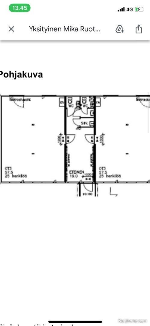
Kuvaus
Käy tykkäämässä meistä myös facebookissa:
MMM Group Oy nimellä löytyy!
HUOM!
Nyt myös saatavilla yrityksille Leasing tyylinen rahoitus muoto mm merikonteille ja viipalemoduuleille.
Kysy lisää.
Hyvä valikoima erilaisia työmaa / toimistokoppeja päiväkoti. koulu ja sairaala käytöstä!
Nyt Mikkeli, Merikarvia, Joensuu, Lohja
ja Kuopiossa
Nyt erä hienoja koppeja joissa osassa mm lattialämmitykset ja laminaatit lattioissa.
Leveydet 3m tai 3.3m.
H. alk 3000eur + alv.
(väliviipaleet)
Hinnat 3000-6500eur + alv maliista ja varusteista riippuen.
On toimistotiloja, WC/suihkutiloja, pukuhuonetiloja ym. Näistä voi tehdä erilaisia kokonaisuuksia yhdistelemällä ja muokkaamalla.
Soittele tarkemmin minkälaista tilaa olet vailla niin koitamme vastata tarpeisiinne.
Kuljetukset ympäri Suomen onnistuu myös meidän kautta.
Luotettavaa merikontti ja koppi kauppaa jo yli 15 vuotta. .
-Merikontti
-Työmaakoppi
-Työmaamoduuli
-Viipalemoduuli
-Viipaleparakki
-Varastokontti
-Työmaatila
-Toimistokoppi
-Toimisto
-Merikontti
-Työmaakopit
-Varastokontti
-Työmaaparakki
-Toimistokopit
-Toimisto
-Kylmäkontti
-Eristekontti
-Leasing rahoitus
-Toimistokontti
-Väestötilat
-Värstötila
Huom! Painike, joka näyttää koko kuvauksen on pelkästään visuaalinen.