
Kuvagalleria
(1/4)
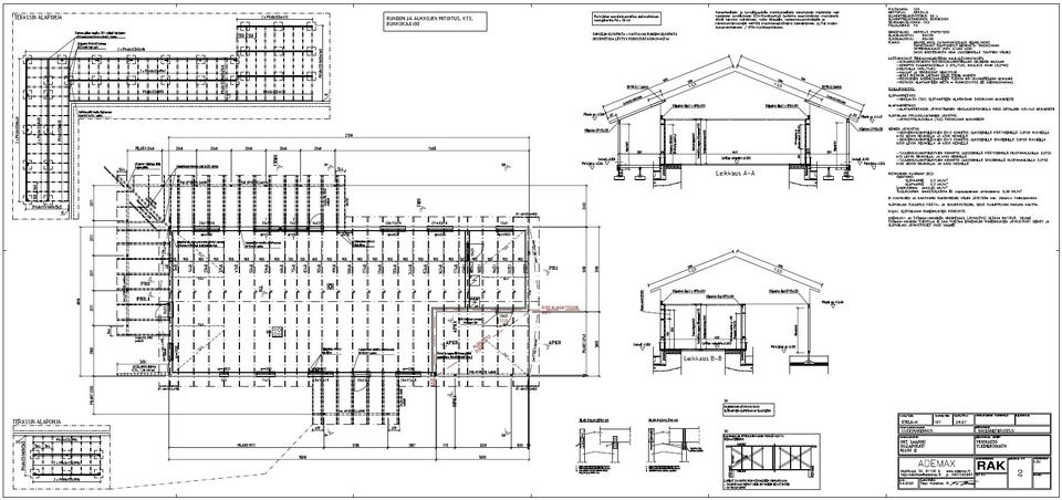
Perustuskuvat, perustussuunnittelu
Myydään1 €
Kuvaus
Terve!
Teen yhtiölläni Ademax Oy perustussuunnittelua ja rakennesuunnittelua, hinta sopimuksen mukaan.
Perustussuunnittelu ja betonirakennesuunnittelu:
Maanvaraiset perustukset, rossipohjaperustukset, paaluperustukset, ontelolaatat, betoniseinäelementit, mastopilarianturat, tukimuurit, S1-luokan väestönsuojat ym.
Rakennesuunnittelu:
Omakotitalot, paritalot, rivitalot, koulut, hoivakodit, hallit, talousrakennukset, autosuojat, hevostallit, laajennukset ym.
Tarvittaessa myös rakennuslupakuvat, elementtisuunnittelu, pääsuunnittelu ja vastaava työnjohtaja.
Kuvat saat PDF-tiedostoina sähköpostiisi.
Yhteystiedot:
teijo.karsikas@ademax.fi
p. 040 734 2493
Palvelu koko Suomen alueella: Utsjoki, Inari, Enontekiö, Muonio, Kittilä, Kolari, Savukoski, Salla, Pelkosenniemi, Pello, Ylitornio, Ranua, Posio, Sodankylä, Rovaniemi, Kemijärvi, Pello, Kuusamo, Taivalkoski, Tornio, Tervola, Kemi, Pudasjärvi, Ii, Haukipudas, Kiiminki, Kempele, Oulunsalo, Oulu, Liminka, Lumijoki, Siikajoki, Tyrnävä, Muhos, Raahe, Kalajoki, Oulainen, Ylivieska, Haapavesi, Nivala, Kokkola, Vaasa, Seinäjoki, Iisalmi, Kajaani, Kuopio, Sotkamo, Kuhmo, Nurmes, Lieksa, Haapajärvi, Viitasaari, Lapua, Kurikka, Virrat, Lapua, Jämsä, Ähtäri, Äänekoski, Varkaus, Savonlinna, Mikkeli, Kitee, Parkano, Ikaalinen, Huittinen, Rauma, Sastamala, Hämeenlinna, Jyväskylä, Joensuu, Lappeenranta, Imatra, Loimaa, Hyvinkää, Pori, Tampere, Heinola, Kouvola, Lahti, Kotka, Nurmijärvi, Porvoo, Vantaa, Helsinki, Espoo, Kirkkonummi, Lohja, Salo, Turku, jne.
Huom! Painike, joka näyttää koko kuvauksen on pelkästään visuaalinen.
Sijainti
| Ilmoituksen tunnus | 19496892 |
|---|---|
| Viimeksi muokattu | 24.1.2025 klo 15.50 |






