Containexin valmistamat työmaakopit ovat paras ratkaisu tilantarpeeseen rakennustyömailla: niiden avulla voi luoda toimistotiloja, pukeutumistiloja ja saniteettitiloja. Osista koottavista rakenteista on helppo muodostaa suurempia tiloja ja koota läpi kuljettavia kokonaisuuksia.
Tekniset parametrit:
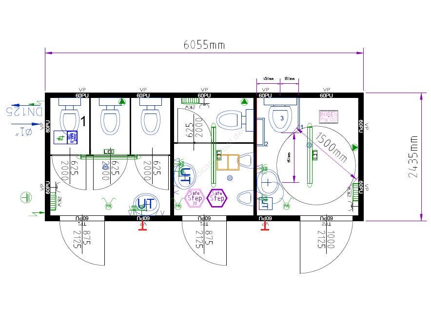
Containex vessa kontti, joka koostuu 3 osasta.
Ulkomitat 2,345 x 6,055 x 2,591 m
Naisten wc, miesten wc ja inva-wc.
Valmis ratkaisu, jossa kaikki laitteet, putket valmiina, joiden päät tuodaan ulos seinästä.
Ulkoväri: vaaleanharmaa RAL 7035
Eristys: seinät PU60mm (vastaa 100mm villaa), lattia ja katto 100mm mineraalivillaa
Konteissa on CE-merkintä, joka takaa EU:n vaatimukset täyttävän sähköjärjestelmän ja rakennuslaadun.
Säiliöt ovat ISO-standardin mukaisia.
Hinta 13 990€ + ALV24% = 17 347,60€
Jos ostaja on Suomen alvverovelvollinen yritys, sitten ALV (0%).
Hintaan lisääntyy rahtin hinta Virosta Suomeen.
Jos lähetät tarkan osoitteen, voimme myös tehdä rahtin tarjouksen.
Jos paikan pällä on nosturi tai leveä trukki, sitten rahti on paljon halvempi.
Valmistamme myös monia erikoisratkaisuja.
Katso:
http://www.soojakud.com/fi/
E-kauppa (standard ratkaisut, hinnat ALV-lla): https://shop.ucrent.ee/fi/tootekategooria/konttit
Huom! Painike, joka näyttää koko kuvauksen on pelkästään visuaalinen.