Kuvagalleria
(1/3)
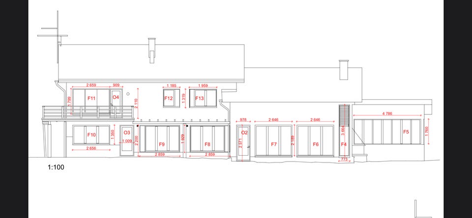
Omakotitalon ikkunat
Myyty
Myydään
1 500 €
Tuotteen kuvaus
Kunto: Hyvä
Kaupan omakotitalon ikkunat -94 vuonna rakennetusta kivitalosta. Ikkunat ovat kirkkaat ja karmit ehjät. Ohessa ikkunoiden mittakuva.
Ikkunoihin voi tulla paikan päälle tutustumaan sovitusti. Ikkunat puretaan ja pakataan lavoille kuljetus valmiiksi, kesäkuun aikana. Tarkempi ajankohta sovitaan ostajan kanssa.
Lisätietoa saa nopeiten puhelimitse mutta vastaan toki myös viesteihin.
Tervetuloa tutstumaan.
Huom! Painike, joka näyttää koko kuvauksen on pelkästään visuaalinen.
Käyttäjäprofiili
Kirjaudu sisään, jos haluat nähdä profiilin ja lähettää viestejä.
Kirjaudu sisäänIlmoituksen metatiedot
Viimeksi muokattu: 1.5.2025 klo 9.35 ・ Ilmoituksen tunnus: 23762902