
Kuvagalleria
(1/4)
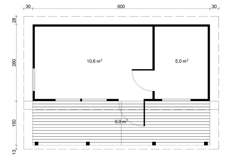
Moderni pihasauna 26 valmis
Myydään13 900 €
Kuvaus
SUPER TARJOUS upea hirsisauna ,moderni 26, sauna toimitetaan valmiiksi kasattuna, lauteet lepästä, kiuas + piippu+ vesisäiliö +LAINVAATIMA savupelti piipussa +suojapellit kiukaan ympärillä, vedenpoistoränni lattialla, hirsi 70mm, yläpohjassa eriste 50mm,PALAHUOPA+ HARJAPELTI+ RÄYSTÄÄN REUNAPELLIT, SAUNAT VALMISTETAAN PARHAASTA KOTIMAISESTA KUUSESTA,
,terassi ,käsitelty ulkoapäin homeen estoaineella,, hinta ennen 17900eja nyt tarjous 13900€ tarjous voimassa 30.11-25 kysy lisää 0401616666
Huom! Painike, joka näyttää koko kuvauksen on pelkästään visuaalinen.
Sijainti
| Ilmoituksen tunnus | 24422535 |
|---|---|
| Viimeksi muokattu | 6.11.2025 klo 12.01 |

