Kuvagalleria
Pihasauna - valmistuu viim. juhannukseksi!
Myydään
15 900 €
Tuotteen kuvaus
Kunto: Uusi
Tästä nopeimmalle tyylikäs eristetty löylyvalmis pihasauna oleskelutilalla. Parhaillaan rakenteilla, valmistuu viimeistään juhannukseksi.
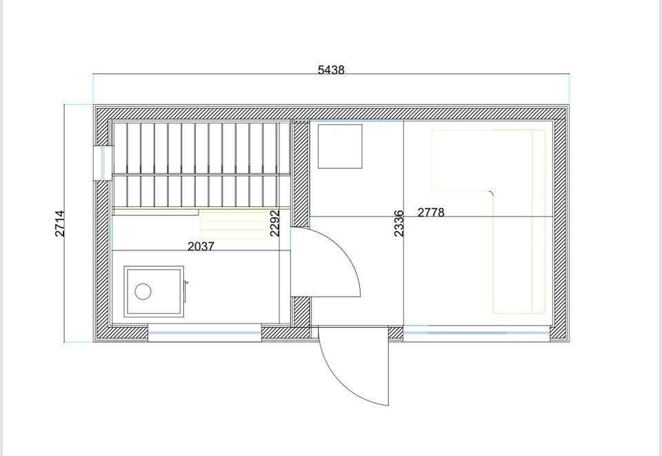
- mitat 5,4m x 2,7m
- Lattia- ja kattorunko 148mm x 48mm. Lattiassa eristeenä 50mm finnfoam ja katossa eristeenä 100mm villa.
- seinärunko 123mm x 48mm. Eristeenä 100mm villa.
- lämpölasit. Saunassa tuuletusikkuna.
- mökkiovi lukolla.
- Narvin Kota Kuru 20- puukiuas vesisäiliöllä.
- laadukkaat sisä- ja ulkovalaisimet himmentimellä. Pistoraisiat ulkona 1kpl ja sisällä 3kpl
Hinta 15 900€ + mahdollinen rahti. Mahdollisuus auttaa kuljetuksen järjestämisessä.
Pihasauna sijaitsee Kokkolassa. Mahdollisuus tulla katsomaan.
Kuvia lisätään sitä mukaa kun valmistuu.
! Lisää videoita ja kuvia: @kirveskuja
Käyttäjäprofiili
Kirjaudu sisään, jos haluat nähdä profiilin ja lähettää viestejä.
Kirjaudu sisäänIlmoituksen metatiedot
Viimeksi muokattu: 10.6.2025 klo 16.42 ・ Ilmoituksen tunnus: 24719408