
Kuvagalleria
(1/3)
Teräs keittiöntasot
Myydään
Myyjä ei ole vielä aktivoinut ToriDiiliä. ToriDiili on Torin uusi maksu- ja kuljetuspalvelu, jolla kotiutat torilöydöt nopeasti ja turvallisesti. Lue lisää
Tuotteen kuvaus
Kunto: Uusi
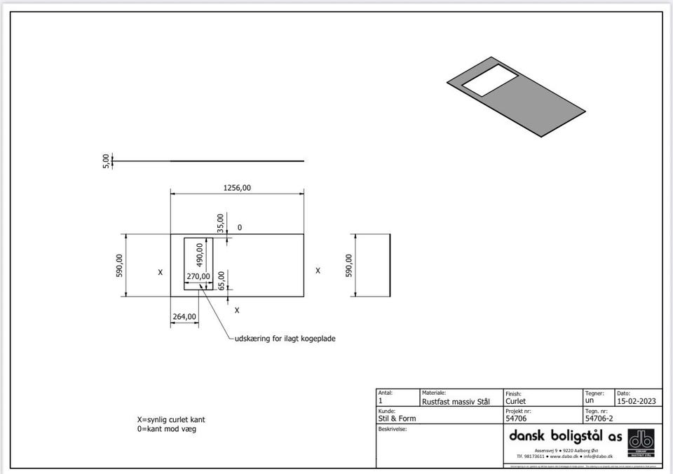
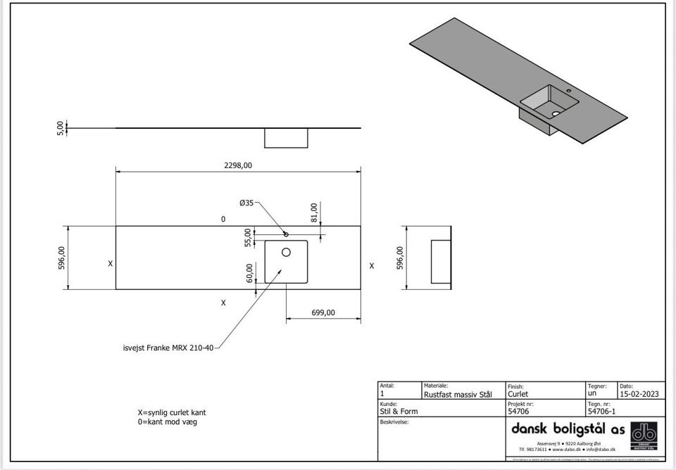
Myydään kaksi upeaa tanskalaista teräksistä pöytätasoa. Paksuus 5mm. Loput mitat löytyy kuvista. Toisessa tasossa on allas ja toisessa reikä kaksipaikkaiselle liedelle.
Nouto Punavuoresta. Tarjoa!
Huom! Painike, joka näyttää koko kuvauksen on pelkästään visuaalinen.
Käyttäjäprofiili
Kirjaudu sisään, jos haluat nähdä profiilin ja lähettää viestejä.
Kirjaudu sisäänIlmoituksen metatiedot
Viimeksi muokattu: 6.11.2025 klo 22.53 ・ Ilmoituksen tunnus: 29993863



