Kuvagalleria
(1/8)
Vuokrataan varastotila 71 m2 Tikkurila Vantaa
Myydään980 €
Kuvaus
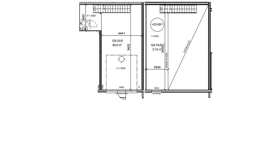
Vuokrataan KOY Tikkurilan Talliosake 2 monikäyttöinen varasto, autotalli, toimi-, harrastetila 129. Tilassa jo valmiina parvi, wc sekä ilmalämpöpumppu. Parvella ikkunan läheisyydessä lisäpistorasioita 4 kpl ja parven alla wc:n vieressä lisävalaistusta. Tilan lattiapinta-ala on 49 m² ja parven 22 m². Yhteispinta-ala 71 m². Vuokrattavissa 01.12.2025. Vuokra 980 € / kk.
Tikkurilan Talliosake 2 sijaitsee lähellä Kehä III:sta ja Lahdenväylää. Lyhyt matka mm. Tikkurilan asemalle.
Talliosakkeet ovat laadukkaita sekä hyvin varusteltuja, soveltuen harraste-, varasto- ja yritystilakäyttöön.
Tila on sähkölämmitteinen. Vuokralainen tekee tilaan oman sähkösopimuksen. Vesi- ja sähkömaksu kulutuksen mukaan. Vakuus kahden kuukauden vuokraa vastaava määrä. Yritysasiakkaille vuokraan lisätään alv 25,5%. Luottotiedot tarkistetaan.
Tilamitat: 9,40 (Pituus) 4,40 (Leveys) 5,00 (Korkeus)
Ovimitat: 3,45 (Leveys) 3,90 (Korkeus)
Käyttötarkoitusesimerkkejä:
- autotalli
- moottoripyörätalli
- mönkijätalli
- varastotila
- harrastetila
- kimppatalli
- toimitila
yrityksen työtarvikevarasto / kalustovarasto
Tila ei sovellu autokorjaamoksi eikä autopesulaksi.
Ota yhteyttä. Kerron mielelläni lisää.
Jani Sanevuori
Aluemyyntipäällikkö,
Etelä-Suomi, Vuokrauspalvelu, LVV
jani.sanevuori@talliosake.fi
050 361 4814
Talliosake toimii täysin digitaalisesti alusta loppuun vuokra- tai kauppasopimuksen prosessin aikana.
Vuokrattavana myös työ- ja tuotantotiloja. Kysy lisää.
Huom! Painike, joka näyttää koko kuvauksen on pelkästään visuaalinen.
Sijainti
| Ilmoituksen tunnus | 30477769 |
|---|---|
| Viimeksi muokattu | 19.9.2025 klo 11.15 |