Kuvagalleria
(1/6)
Vuokrataan varastotila 47 m2 Kivistö Vantaa
Myydään770 €
Kuvaus
Talliosake – pienyrittäjän kumppani!
Talliosake on yritys, joka on kasvanut pienestä suureksi! Me ymmärrämme pienyrittäjän tarinaa: ensin syttyy intohimo omaan juttuun, joka sitten jalostuu yritykseksi. Idea on enää tekemistä vaille valmis! Siihen tarvitaan tilaa, ja vieläpä järkevän hintaista.
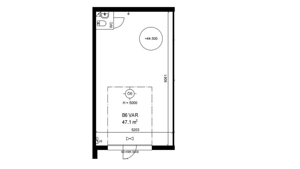
KOY Kivistön Talliosake 2 tila 6. Heti vapaa. Tila on kompakti, kooltaan 47 m2 . Tilassa jo valmiina wc. Huom. mahdollisuus vuokrata yhdessä viereisen työtilan 7 kanssa. Tilojen välillä lukittava käyntiovi. Yhtiön piha-alueella sähköauton latauspiste ja mahdollisuus myös vuokrata autopaikkoja kohteelta.
Sisäkuvat toistaiseksi viitteelliset. Vuokra 770 € / kk.
Loistava sijainti takaa hyvät kulkuyhteydet, mikä palvelee niin kuluttajia kuin yrittäjiäkin. Ihan vieressä on moottoritie E12 sekä Kehä III. Lähellä erinomaiset palvelut ja isot tukkuliikkeet.
Tilamitat: 9,06 (Pituus) 5,20 (Leveys) 5,00 (Korkeus)
Ovimitat: 3,00 (Leveys) 3,90 (Korkeus)
Mahdollisuus mainostaa yritystäsi valomainoksessa Talliosakkeen ulkoseinällä. Keskeinen sijainti varmistaa runsaan näkyvyyden. Kysy lisää!
Vuokraaminen on tehty helpoksi ja nopeaksi, jotta pääset omaan tilaasi työskentelemään mahdollisimman pian! Vuokrasopimusprosessi tapahtuu täysin digitaalisesti. Soita tai ota yhteyttä yhteystietolomakkeen kautta, ja kerro toiveesi!
Jani Sanevuori
Aluemyyntipäällikkö,
Etelä-Suomi, Vuokrauspalvelu, LVV
jani.sanevuori@talliosake.fi
050 361 4814
Lisätietoa tilan vuokraajalle:
Tila on sähkölämmitteinen, joten vuokralainen tekee tilaan oman sähkösopimuksen. Vesi- ja sähkömaksu muodostuvat kulutuksen mukaan. Vuokravakuus on kahden kuukauden vuokraa vastaava määrä. Vuokrasopimuksen teon yhteydessä tarkistamme yrityksen luottotiedot. Varmistathan tilan soveltuvuuden yritystoiminnallesi myyjältämme.
Talliosakkeet ovat laadukkaita ja hyvin varusteltuja. Meiltä löytyy työtiloja, toimistotiloja, tuotantotiloja, liiketiloja ja varastotiloja juuri sinun tarpeisiisi toimialasta riippumatta. Kokemuksemme mukaan moni yrittäjä hyötyy tilasta, jossa erilaiset toiminnot yhdistyvät.
Huom! Painike, joka näyttää koko kuvauksen on pelkästään visuaalinen.
Sijainti
| Ilmoituksen tunnus | 30709453 |
|---|---|
| Viimeksi muokattu | 15.10.2025 klo 14.21 |