Kuvagalleria
(1/8)
Vuokrataan varastotila 149 m2 Keimola Vantaa
Myydään2 500 €
Kuvaus
Vuokrattavana liiketilaa. Heti vapaa. KOY Keimolan Talliosake monikäyttöinen ja edustava LIIKETILA 3. Vuokra 2 500 € / kk.
Vuokrataan vain yritysasiakkaille – vuokraan lisätään ALV 25,5%.
Keimolan Talliosake sijaitsee loistavien liikenneyhteyksien varrella Hämeenlinnanväylän kupeessa. Talliosakkeen läheisyydessä on bussipysäkki ja juna-asemalle on matkaa vain muutama sata metriä, joten tänne pääset kätevästi myös julkisilla.
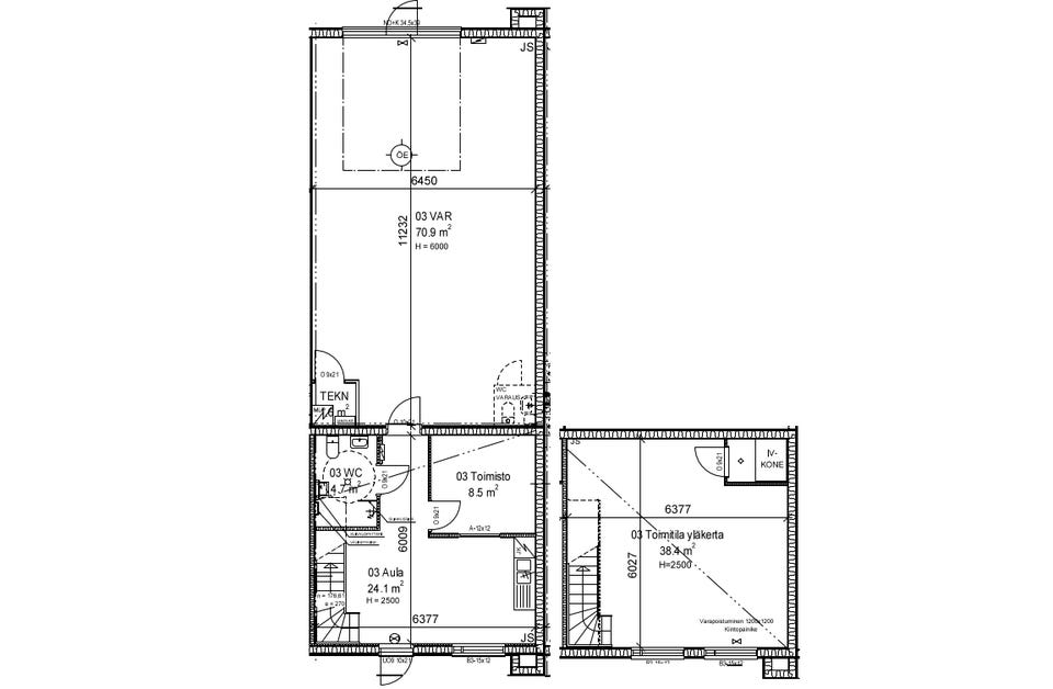
Liiketila käsittää katutasossa sijaitsevan toimiston, taukotilan, keittiön ja suihkullisen wc-tilan, yhteensä n. 39 m² sekä varastotilan 71 m². Toisessa kerroksessa tilava 39 m²:n toimisto. Tilan lattiapinta-ala on 110 m² ja toimistokerroksen 39 m². Yhteispinta-ala 149 m². Tämä kokonaisuus takaa tulevalle toiminnalle käytännölliset ja viihtyisät puitteet. Huom. hallissa erillinen käsienpesuallas ja hana.
Tila on sähkölämmitteinen. Vuokralainen tekee tilaan oman sähkösopimuksen. Vesi- ja sähkömaksu kulutuksen mukaan. Vakuus kahden kuukauden vuokraa vastaava määrä. Haetaan pitkäaikaista vuokralaista. Luottotiedot tarkistetaan.
Käyttötarkoitusesimerkkejä:
- liiketila
- show-room
- toimistotila
- toimitila
- työtila
- varastotila
Tila ei sovellu autokorjaamoksi eikä autopesulaksi.
Ota yhteyttä. Kerron mielelläni lisää.
Jani Sanevuori
Aluemyyntipäällikkö,
Etelä-Suomi, Vuokrauspalvelu, LVV
jani.sanevuori@talliosake.fi
050 361 4814
Talliosake toimii täysin digitaalisesti alusta loppuun vuokra- tai kauppasopimuksen prosessin aikana.
Huom! Painike, joka näyttää koko kuvauksen on pelkästään visuaalinen.
Sijainti
Ilmoituksen tunnus | 31490374 |
---|---|
Viimeksi muokattu | 10.10.2025 klo 9.47 |