Kuvagalleria
(1/8)
Vuokrataan varastotila 194 m2 Lempäälä
Myydään1 687 €
Kuvaus
Vuokrattavana ainoana vapaana tilana nyt kaksi tilaa yhdessä. Ainutlaatuinen tilakokonaisuus. Heti vapaa.
Tämän tilan vuokrasta (norm. 2.250 € + alv) 25% alennus ensimmäisen vuoden ajalta, kun teet vähintään kahden vuoden mittaisen vuokrasopimuksen, niin vuokra 1687 € / kk.
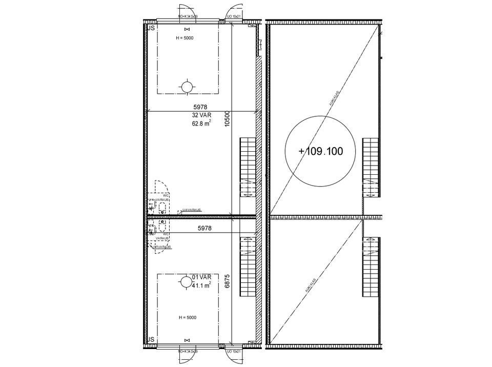
Suositulta Lempäälän Talliosakkeelta vuokrattavissa monikäyttöistä varasto- ja toimitilaa (yhdistetyt tilat 1 ja 32). Kahdessa erillisessä tilassa molemmissa kaksi kerrosta sekä erilliset käyntiovet. Minikeittiö ja wc. Huom. tilojen välillä käynti parvella sijaitsevan välioven kautta.
Tilan 1 ensimmäisen krs:n lattiapinta-ala 41 m² ja 2. krs 36 m². Yhteispinta-ala 77 m². Tilan 32 ensimmäisen krs:n lattiapinta-ala 63 m² ja 2. krs 54 m². Yhteispinta-ala 117 m². Molempien tilojen yhteispinta-ala 194 m².
Lempäälän Talliosake 2 sijaitsee huikealla paikalla Ideaparkin kauppakeskusta vastapäätä. Vieressä sijaitseva Helsinki-Tampere -moottoritien liittymän sijainti takaa nopeat kulkuyhteydet kaikkialle Pirkanmaalla.
Talliosakkeet ovat laadukkaita sekä hyvin varusteltuja, soveltuen harraste-, varasto- ja yritystilakäyttöön.
Tila on sähkölämmitteinen. Sähkönkäytön kuukausimaksu 10€ + laskutus kulutuksen mukaan 4 x vuodessa / tila. Vesimaksu kulutuksen mukaan. Vakuus kahden kuukauden vuokraa vastaava määrä. Haetaan pitkäaikaista vuokralaista. Luottotiedot tarkistetaan. Vuokrataan vain yritysasiakkaille – vuokraan lisätään ALV 25,5%.
Tila 1 tilamitat: 6,87 (pituus) 6,01 (leveys) 5,00 (korkeus), 2. krs 2,40 (korkeus)
Tila 32 tilamitat: 10,50 (pituus) 6,01 (leveys), 5,00 (korkeus), 2. krs 2,40 (korkeus)
Käyttötarkoitusesimerkkejä:
- toimitila
- varastotila
- harrastetila
- kimppatalli
Tila ei sovellu autokorjaamoksi eikä autopesulaksi.
Ota yhteyttä ja sovi esittelyaika. Tule tutustumaan tilaan, joka kannattaa nähdä.
Hannu Peltonen
Aluemyyntipäällikkö Pirkanmaa, Kanta-Häme
hannu.peltonen@talliosake.fi
040 630 3150
Talliosake toimii täysin digitaalisesti alusta loppuun vuokra- tai kauppasopimuksen prosessin aikana.
Vuokrattavana myös työ- ja tuotantotiloja. Kysy lisää.
Kaikki Tampereen seudun vuokrattavat tilat löydät täältä: https://talliosake.fi/vuokrattavat-tilat/?kaupunki=Tampere
Huom! Painike, joka näyttää koko kuvauksen on pelkästään visuaalinen.
Sijainti
| Ilmoituksen tunnus | 33370051 |
|---|---|
| Viimeksi muokattu | 19.11.2025 klo 11.06 |
