Kuvagalleria
(1/5)
5 vuotta vanha sisustusarkkitehdin suunnittelema, puusepällä teetetty keittiö
Myydään
1 500 €
Myyjä ei ole vielä aktivoinut ToriDiiliä. ToriDiili on Torin uusi maksu- ja kuljetuspalvelu, jolla kotiutat torilöydöt nopeasti ja turvallisesti. Lue lisää
Tuotteen kuvaus
Kunto: Kuin uusi
Keittiö on valmiiksi purettu ammattiurakoitsijan toimesta ja on noutovalmis Helsingin Kruununhaassa.
Hintapyyntö 1500 eur
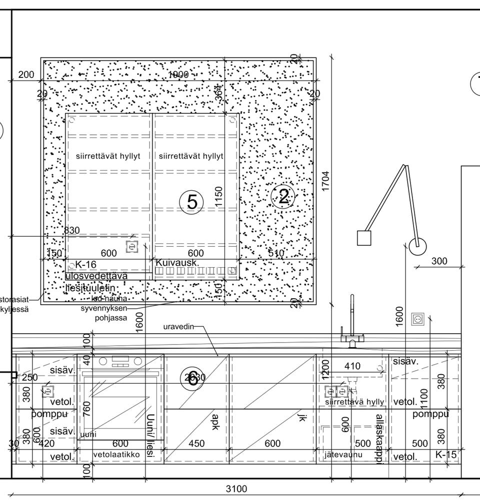
Kaikki olennaiset speksit, kuten mitat, materiaalit ja vesikalusteluettelo löytyvät kuvista.
Kodinkoneet on lueteltu alla:
BOSCH CMG676BB1 Compact Oven black (mikro+uuni)
BOSCH PUE611BB1E 60cm Induction
BOSCH KUL15A60 fridge
AEG SE63400P 45cm dish washer
AEG DGE5861 fan
AEG ECFB01 filter
Huom! Painike, joka näyttää koko kuvauksen on pelkästään visuaalinen.
Käyttäjäprofiili
Kirjaudu sisään, jos haluat nähdä profiilin ja lähettää viestejä.
Kirjaudu sisäänIlmoituksen metatiedot
Viimeksi muokattu: 3.12.2025 klo 10.07 ・ Ilmoituksen tunnus: 34024106
