Kuvagalleria
Sauna, Malli NHT Halunan Sauna 14,5m2 (kakkoslaatuinen)
Myydään
3 500 €
Tuotteen kuvaus
Kunto: Kuin uusi
NHT Halunan sauna 14,5m2 kakkoslaatuinen hirsikehikko.
Kehikko on valmiiksi kasattu ja sisältää seuraavat tuotteet:
- Massiivihirsi 68x163
- Kierretangot salvoksissa
- Ikkuna aukkojen koko löytyy pohjakuvista sekä oviaukot
- Eristeet laitettu ulkokiertoihin
- Karapuut ikkuna ja oviaukoissa valmiina
Tästä oiva mahdollisuus rakentaa itselle sauna tai vaikka toimisto.
Noudettaessa paikalla on pyöräkone, joka lastaa tuotteen kyytiin.
Toimitus onnistuu reittirahtina tai mobiilinosturilla, kysy lisää mikäli tarvitset rahtia.
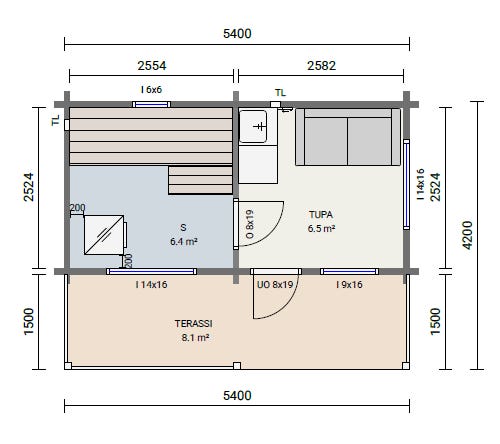
Myös havainnekuvia mukana millaisen rakennuksen voisi tehdä kyseisestä kehikosta.
Tuote on Kuopiontie 1196, varastoituna hallissa.
Huomaa tuote on kakkoslaatuinen ja siinä on pinnassa rosoisuutta sekä tummempia oksia.
Käyttäjäprofiili
Kirjaudu sisään, jos haluat nähdä profiilin ja lähettää viestejä.
Kirjaudu sisäänIlmoituksen metatiedot
Viimeksi muokattu: 8.12.2025 klo 11.58 ・ Ilmoituksen tunnus: 34253769

