Kuvagalleria
(1/6)
Siirrettävä asuntokontti!
Myydään
10 490 €
Myyjä ei ole vielä aktivoinut ToriDiiliä. ToriDiili on Torin uusi maksu- ja kuljetuspalvelu, jolla kotiutat torilöydöt nopeasti ja turvallisesti. Lue lisää
Tuotteen kuvaus
Kunto: Hyvä
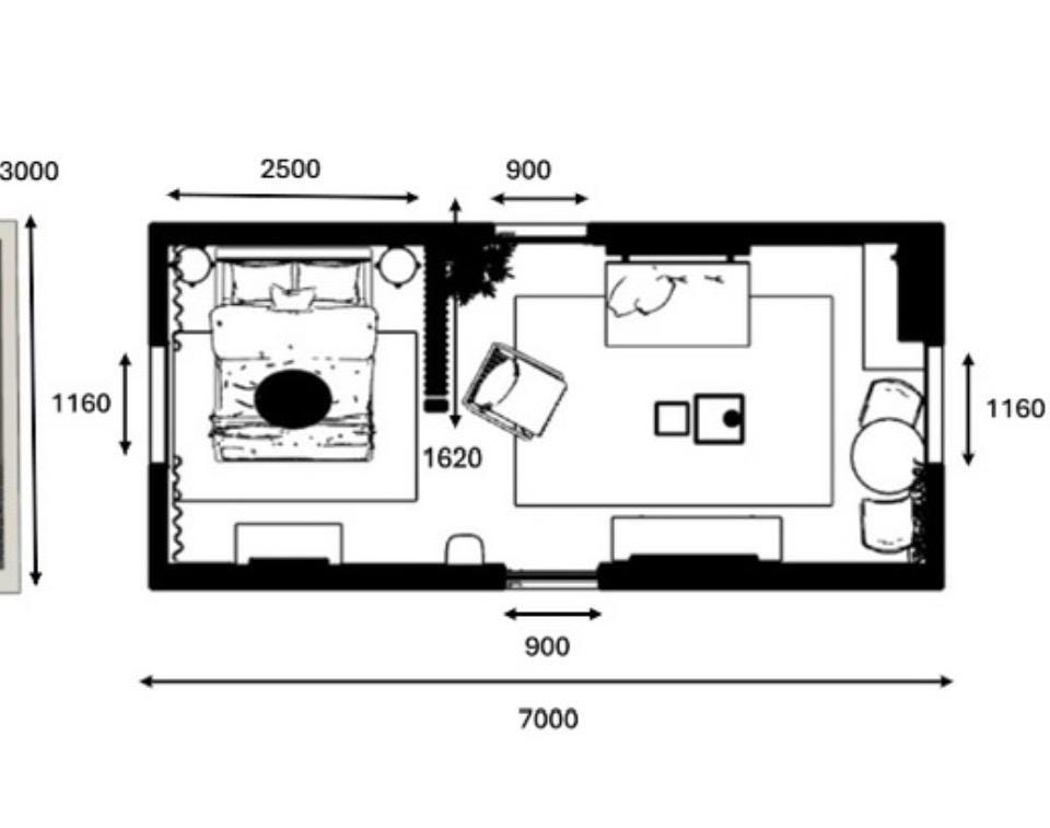
Täysin remontoitu käytetystä työmaakontista tehty moneen käyttöön oleva asuintila. 7.3m. Pitkä ja 3.1m. Leveä.
Kontissa uusittu: sähköt,ilmanvaihto,lattiat,kaikki sisäseinät käsitelty kosteudenkestävällä maalilla,uusi keittiö jossa jääkaappi ym. Lämpiää seinässä olevilla sähköpattereilla sekä ilmalämpöpumpulla.
Nostokorvat katolla sekä kiskot alla siirrettäessä.
Tarvittaessa kalustettuna. Soita ja kysy lisää.
Huom! Painike, joka näyttää koko kuvauksen on pelkästään visuaalinen.
Käyttäjäprofiili
Kirjaudu sisään, jos haluat nähdä profiilin ja lähettää viestejä.
Kirjaudu sisäänIlmoituksen metatiedot
Viimeksi muokattu: 20.12.2025 klo 15.08 ・ Ilmoituksen tunnus: 34740767