Kuvagalleria
(1/5)
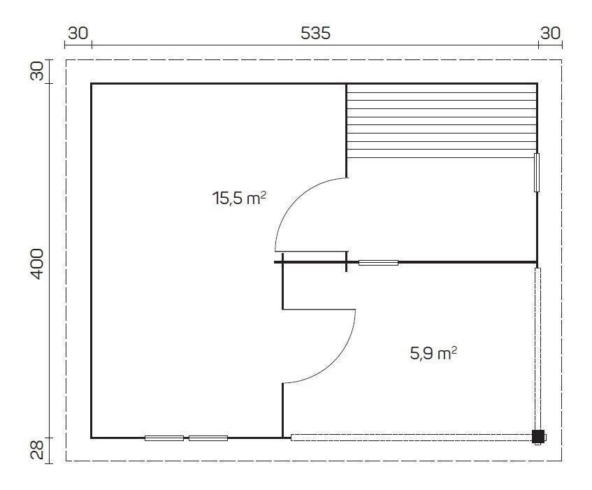
Piha sauna + sauna tupa
Myydään9 490 €
Kuvaus
super tarjous ,piha sauna, tilavalla sauna tupa-pukuhuoneella,seinän paksuus 70mm, täydellinen puuosatoimitus, sis, ikkunat, ovet, helat, lukot, kasaustarvikkeet, lattiat, umpeen ladottu ponttilautakatto, hinta ennen 13900 ja nyt tarjous 9490, TÄLLÄ HINNALLA JÄLJELLÄ 2 KPL,tarjous on voimassa 30.1.-26 KYSY LISÄÄ 0401616666
Huom! Painike, joka näyttää koko kuvauksen on pelkästään visuaalinen.
Sijainti
| Ilmoituksen tunnus | 35279706 |
|---|---|
| Viimeksi muokattu | 6.1.2026 klo 13.19 |

