Kuvagalleria
Toimitilaa 360 m2 Joensuun kupeessa Liperissä
Myydään
10 000 €
Tuotteen kuvaus
Joensuun kupeessa Liperissä toimitilaa, josta saisi myös ison hulppean asunnon.
*;Erittäin edullisesti omaan käyttöön tai sijoituskohteeksi.
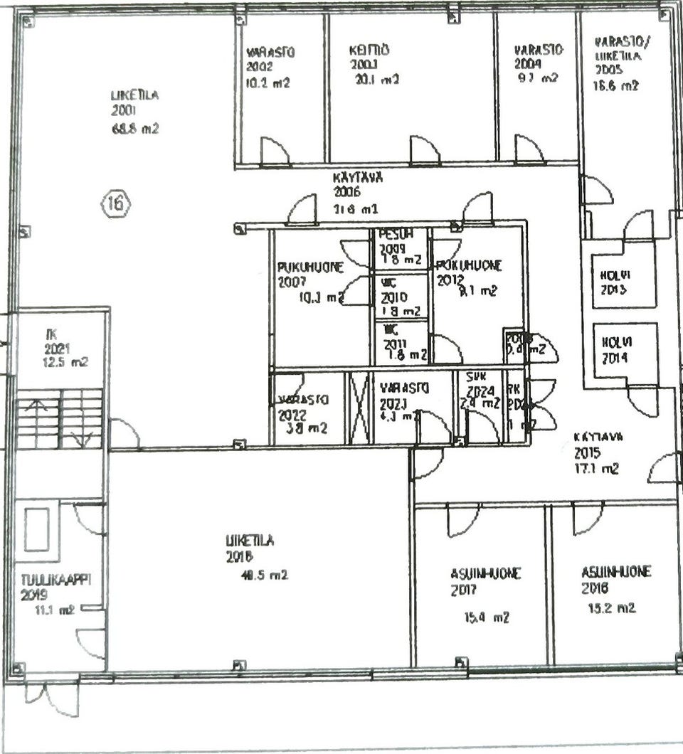
* Tilassa toiminut kirpputori
* Katutasossa 300 m2 ja
alakerrassa lämmintä varastotilaa 60 m2.
* Tilassa kaksi isoa huonetta, jossa kirpputori toiminut. Lisäksi 5 huonetta + keittiö + pari wc + suihkuhuone + pukuhuoneet + kaksi kassaholvia ja muutama varasto- / vaatehuone.
* Iso katettu lastauslaituri, johon saisi vaikka terassin.
* Tilaan saisi esim. kirpputorin, nettikaupan, kahvilan, eläinlääkärin tai hulppeat tilat yhteisöasumiseen vaikka ikäihmisille.
* Kunnan palvelut ja linja-autoasema samassa rakennuksessa, ruokakauppa ja kirjasto alle 50 metrin päässä.
* Lentokenttä 23 km, automarketit noin 20 km.
Tule katsomaan ja tee tarjous!
Pohjahinta 10 000
Käyttäjäprofiili
Kirjaudu sisään, jos haluat nähdä profiilin ja lähettää viestejä.
Kirjaudu sisäänIlmoituksen metatiedot
Viimeksi muokattu: 19.3.2024 klo 17.02 ・ Ilmoituksen tunnus: 3533165



