Kuvagalleria
(1/12)
Vuokrataan varastotila 66 m2 Kivistö Vantaa
Myydään895 €
Kuvaus
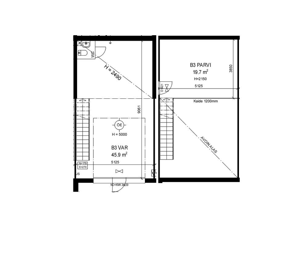
Vuokrattavana. Heti vapaa. KOY Kivistön Talliosake 2 monikäyttöinen varasto, autotalli, harraste-, toimitila 3. Tilassa jo valmiina parvi ja wc. Tilan lattiapinta-ala on 46 m² ja parven 20 m². Yhteispinta-ala 66 m². Vuokra 895 € / kk.
Vuokrataan vain yritysasiakkaille – vuokraan lisätään ALV 25,5%.
Kivistön Talliosake 2 sijainti näkyvällä paikalla palvelee niin kuluttaja- kuin yritysasiakkaita. Kohde on hyvien kulkuyhteyksien varrella: nopeasti ja vaivattomasti lentokentälle sekä E12 ja Kehä III.
Talliosakkeet ovat laadukkaita sekä hyvin varusteltuja, soveltuen harraste-, varasto- ja yritystilakäyttöön.
Tila on sähkölämmitteinen. Vuokralainen tekee tilaan oman sähkösopimuksen. Vesi- ja sähkömaksu kulutuksen mukaan. Vakuus kahden kuukauden vuokraa vastaava määrä. Luottotiedot tarkistetaan.
Tilamitat: 9,06 (Pituus) 5,12 (Leveys) 5,00 (Korkeus)
Ovimitat: 3,40 (Leveys) 3,90 (Korkeus)
Käyttötarkoitusesimerkkejä:
- autotalli
- moottoripyörätalli
- mönkijätalli
- varastotila
- harrastetila
- kimppatalli
- toimitila
- yrityksen työtarvikevarasto / kalustovarasto
Tila ei sovellu autokorjaamoksi eikä autopesulaksi.
Ota yhteyttä. Kerron mielelläni lisää.
Jani Sanevuori
Aluemyyntipäällikkö Etelä-Suomi, Vuokrauspalvelu, LVV
jani.sanevuori@talliosake.fi
050 361 4814
Talliosake toimii täysin digitaalisesti alusta loppuun vuokra- tai kauppasopimuksen prosessin aikana.
Vuokrattavana myös työ- ja tuotantotiloja. Kysy lisää.
Kaikki Vantaan seudun vuokrattavat tilat löydät täältä: https://talliosake.fi/vuokrattavat-tilat/?kaupunki=Vantaa
Huom! Painike, joka näyttää koko kuvauksen on pelkästään visuaalinen.
Sijainti
| Ilmoituksen tunnus | 36648009 |
|---|---|
| Viimeksi muokattu | 4.2.2026 klo 16.50 |