Kuvagalleria
(1/10)
Vuokrataan varastotila 79 m2 Keimola Vantaa
Myydään1 000 €
Kuvaus
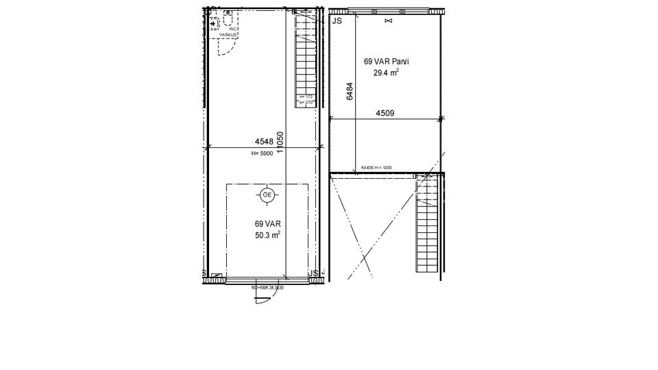
Vuokrattavana. Heti vapaa. KOY Keimolan Talliosake 2 monikäyttöinen varasto, autotalli, harraste-, toimitila 69 – parvi, wc. Tilassa jo valmiina parvi sekä wc. Tilan lattiapinta-ala on 50 m² ja parven 29 m². Yhteispinta-ala 79 m². Vuokra 1.000 € / kk.
Keimolan Talliosake 3 sijaitsee loistavien liikenneyhteyksien varrella Hämeenlinnanväylän kupeessa. Talliosakkeen läheisyydessä on bussipysäkki ja juna-asemalle on matkaa vain muutama sata metriä, joten tänne pääset kätevästi myös julkisilla.
Talliosakkeet ovat laadukkaita sekä hyvin varusteltuja, soveltuen harraste-, varasto- ja yritystilakäyttöön.
Tila on sähkölämmitteinen. Vuokralainen tekee tilaan oman sähkösopimuksen. Vesi- ja sähkömaksu kulutuksen mukaan. Vakuus kahden kuukauden vuokraa vastaava määrä. Yritysasiakkaille vuokraan lisätään alv 25,5%. Luottotiedot tarkistetaan.
Tilamitat: 11,00 (Pituus) 4,50 (Leveys) 5,00 (Korkeus)
Ovimitat: 3,45 (Leveys) 3,90 (Korkeus)
Käyttötarkoitusesimerkkejä:
- autotalli
- moottoripyörätalli
- mönkijätalli
- varastotila
- harrastetila
- kimppatalli
- toimitila
- yrityksen työtarvikevarasto/kalustovarasto
Tila ei sovellu autokorjaamoksi eikä autopesulaksi.
Ota yhteyttä. Kerron mielelläni lisää.
Jani Sanevuori
Aluemyyntipäällikkö Etelä-Suomi, Vuokrauspalvelu, LVV
jani.sanevuori@talliosake.fi
050 361 4814
Talliosake toimii täysin digitaalisesti alusta loppuun vuokra- tai kauppasopimuksen prosessin aikana.
Vuokrattavana myös työ- ja tuotantotiloja. Kysy lisää.
Kaikki Vantaan seudun vuokrattavat tilat löydät täältä: https://talliosake.fi/vuokrattavat-tilat/?kaupunki=Vantaa
Huom! Painike, joka näyttää koko kuvauksen on pelkästään visuaalinen.
Sijainti
| Ilmoituksen tunnus | 36958644 |
|---|---|
| Viimeksi muokattu | 12.2.2026 klo 10.43 |