Kuvagalleria
(1/3)
Hirsilato 10m2 rakomalli VAIN 44,90-/kk!!
Myydään1 190 €
Kuvaus
Nyt klapit, kelkat, mönkijät yms. suojaan ja vielä KOROTTOMALLA rahoituksella!!!
TARJOUS VOIMASSA 31.3.2026 SAAKKA!!
Rakenteen edut
Laadukas rakenne, järkevä hinta
Rakennukset on suunniteltu pohjoisen vaativille olosuhteille. Lumikuormakesto 300 kg/m² ja tuulikuorma 1,0 kN/m².
Rakomallisen ladon tuulettuva rakenne takaa erinomaisen ilmankierron. Tavarat pysyvät suojassa sateelta, mutta kosteus ja pakokaasut pääsevät tehokkaasti poistumaan. Polttopuut jatkavat kuivumistaan ja koneet säilyvät paremmassa kunnossa. Hyvin tuulettuvan rakenteen ansiosta home ei pääse muodostumaan hirren pintaan. Käsittelemättömänä Lapin punahonka ottaa nopeasti harmahtavan pintavärin – tämä on normaali eikä hirttä heikentävä muutos.
Reilun kokoinen ovi – helppoa käyttöä arjessa
LP Garden -rakennuksissa on markkinoiden korkeimmat pariovet vakiona. Ovien kautta mahtuvat helposti polttopuut, puutarhakoneet ja harrastusvälineet. Ramppi mahdollistaa vaivattoman käytön myös pyörällisille koneille.
Pitkät räystäät – suojaa sivuseinät lumelta ja sateelta
Pitkät räystäät ja vino rakenne pitävät seinät kuivempina.
Rakenteet kestävät kovan lumi- ja tuulikuorman, sillä ne on valmistettu 42x145 mm Lapin punahongasta.
Ominaisuudet:
Rakomallinen tuulettuva rakenne
Lapin punahonka 42x145 mm
Pitkät räystäät ja vino sivuseinä
Lumikuormakestävyys 300 kg/m²
Korkeat pariovet helpottavat käyttöä
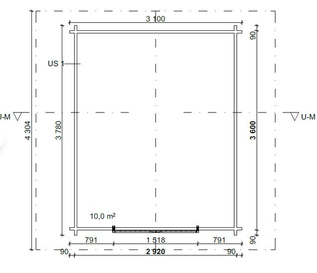
Pituus 3600mm
Leveys 3000mm
Sivuseinän korkeus 1840mm
Harjakorkeus 2890mm
Paino n. 950kg
Toimitus ei sisällä vesikattolaudoitusta, vesikatemateriaalia, eikä lattiarakenteita (tilattava erikseen).
Suomalaiset, komeat, kestävät ja kätevät piharakennukset, hirsiladot, pihaladot, pihavarastot ja puuladot pihallesi tai mökille löydät meiltä.
- Ovet
- Asennusohje
- Toimenpidelupakuvat
Toimitus ei sisällä:
- Vesikattolaudoitusta / vesikatemateriaalia (Tilattava erikseen)
- Lattiarakenteita (Tilattava erikseen)
Kysy tarjous kokonaistoimitukselle: Ari 040-6826872, ari.ruonamaa@miukinkone.fi
SUPER RAHOITUSTARJOUS
Takaisinmaksuaika: 40 kk
kuukausierä: 44,90 € (sis.käsittelymaksu)
Käsiraha: 0,00€
Vuosikorko: 0,00 %
Käsittelymaksu: 12,50 €/kk
Avausmaksu 99€
Toimitusaika 1-3 viikkoa
Huom! Painike, joka näyttää koko kuvauksen on pelkästään visuaalinen.
Lisätietoja
- Kunto
- Uusi
Sijainti
| Ilmoituksen tunnus | 36996068 |
|---|---|
| Viimeksi muokattu | 13.2.2026 klo 12.35 |