Kuvagalleria
(1/9)
Vuokrataan tuotantotila 84 m2 Kivistö Vantaa
Myydään1 300 €
Kuvaus
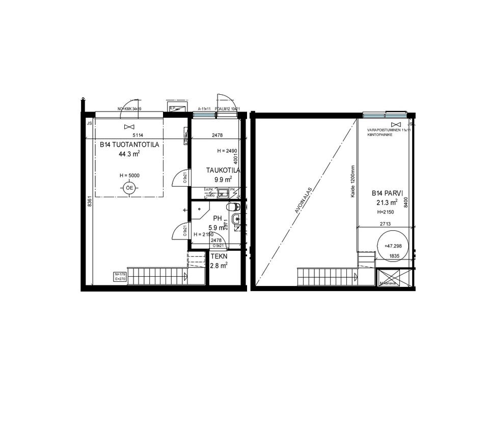
Vuokrattavana KOY Kivistön Talliosake 2 monikäyttöinen TUOTANTOTILA 14. Tilassa parvi, wc sekä ilmalämpöpumppu. Tilan lattiapinta-ala on 63 m² ja parven 21 m². Yhteispinta-ala 84 m². Huom. yhtiön piha-alueella sähköauton latauspiste. Vuokrattavissa 01.05.2026. Vuokra 1.300 € / kk.
Vuokrataan vain yritysasiakkaille – vuokraan lisätään ALV 25,5%.
Kivistön Talliosake 2 Vantaalla sijaitsee näkyvällä paikalla, palvellen niin kuluttaja- kuin yritysasiakkaita. Kohde on hyvien kulkuyhteyksien varrella, nopeine yhteyksineen lentokentälle sekä E12 ja Kehä III.
Koneellisella ilmanvaihdolla varustettu tuotantotila soveltuu päivittäiseen työskentelyyn. Varsinaisen hallin lisäksi tilasta löytyy valmiit sosiaali- ja wc-tilat sekä avointa parvitilaa. Tilat eivät sovellu ammattimaiseen autopesula- tai autokorjaamokäyttöön.
Tila on sähkölämmitteinen. Vuokralainen tekee tilaan oman sähkösopimuksen. Vesi- ja sähkömaksu kulutuksen mukaan. Vakuus kahden kuukauden vuokraa vastaava määrä. Haetaan pitkäaikaista vuokralaista. Luottotiedot tarkistetaan.
Sisäkuvat toistaiseksi vastaavat viereisestä tilasta.
Tilamitat: 8,36 (Pituus) 5,11 (Leveys) 5,00 (Korkeus)
Ovimitat: 3,40 (Leveys) 3,90 (Korkeus)
Ota yhteyttä. Kerron mielelläni lisää.
Jani Sanevuori
Aluemyyntipäällikkö Etelä-Suomi, Vuokrauspalvelu, LVV
jani.sanevuori@talliosake.fi
050 361 4814
Talliosake toimii täysin digitaalisesti alusta loppuun vuokra- tai kauppasopimuksen prosessin aikana.
Kaikki Vantaan seudun vuokrattavat tilat löydät täältä: https://talliosake.fi/vuokrattavat-tilat/?kaupunki=Vantaa
Huom! Painike, joka näyttää koko kuvauksen on pelkästään visuaalinen.
Sijainti
| Ilmoituksen tunnus | 37246790 |
|---|---|
| Viimeksi muokattu | 19.2.2026 klo 12.51 |