Kuvagalleria
(1/5)
Lähes valmis hirsisauna (2,9x2,8m)
Myydään
2 000 €
Myyjä ei ole vielä aktivoinut ToriDiiliä. ToriDiili on Torin uusi maksu- ja kuljetuspalvelu, jolla kotiutat torilöydöt nopeasti ja turvallisesti. Lue lisää
Tuotteen kuvaus
Kunto: Kohtalainen
Todella hyvä hirsisaunan aihio. Ollut joskus saunana.
Lisää sisäkatto, lauteet, kiuas + piippu ja ei muuta kuin löylyttelee.
Muutama pehmeä kohta hirsissä (näkyy kuvissa). Eli jos priiman haluaa, kannattaa nämä kohdat vaihtaa ja vähän runkoa jäykistää.
Huopakatto. Hirren paksuua 120mm.
Pilarien päällä, joten helppo nostaa vaikka tällaisenaan kyytiin.
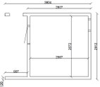
Ulkoleveys noin 2900mmm, syvyys 2800mm+kuisti 1000mm.
Tarkat mitat viimeisessä kuvassa.
Huom! Painike, joka näyttää koko kuvauksen on pelkästään visuaalinen.
Käyttäjäprofiili
Kirjaudu sisään, jos haluat nähdä profiilin ja lähettää viestejä.
Kirjaudu sisäänIlmoituksen metatiedot
Viimeksi muokattu: 19.2.2026 klo 22.23 ・ Ilmoituksen tunnus: 37272185