Kuvagalleria
Annetaan 1970-luvun loma-rakennus pois siirrettäväksi uuden mökin tieltä n. 54m2
Annetaan
Tuotteen kuvaus
Kunto: Kohtalainen
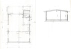
Annetaan 1970-luvun kevythirsimökki pois siirrettäväksi uuden mökin tieltä. Mökki on n. 54m2 ja sisältää kuistin, yhden erillisen makuuhuoneen, makuualkovin, tupakeittiön, takallisen tuvan, sekä saunallisen kylpyhuoneen. Mökki on ollut kuluvan kauden koko kauden vuokralla. Sitä edellisen talven booking.com kautta vuokrattavissa. Takkaan on kuluvalla kaudella ilmennyt hormivika, joka on korjattavissa.
Loma-rakennus annetaan ostajalle seuraavin ehdoin:
Myyjä irrottaa kustannuksellaan loma-asunnon sähköverkosta ja vesi- ja viemäriliitoksista.
Ostaja siirtää kokonaisena tai purkaa rakennuksen ja kuljettaa pois paikalta 10.4.2026-15.4.2026 . Ostaja vastaa kaikista purku-ja kuljetuskustannuksista. Rakennuksen lisäksi luovutus sisältää rakennuksessa olevan irtaimiston, jonka pois kuljetuksesta vastaa myös ostaja. Ostaja huolehtii siirtopaikalta pois koko rakennuksen
irtaimistoineen ja huolehtii jätteeksi menevän tavaran osalta säädösten mukaisesta hävittämisestä kierrättäen. Ostaja esittää tositteet jätteiden hävittämisestä myyjälle. Purkupaikalle saa ostajan toimesta jäädä vain perustukset, joiden purkamisesta vastaa myyjä. Purkaminen ja pois kuljetus tulee hoitaa mahdollisimman vähän ympäristöä vahingoittaen ja naapureita häiriten.
Ruka, lomamökki, kelokaltiokylä. Annetaan mökki.
Käyttäjäprofiili
Kirjaudu sisään, jos haluat nähdä profiilin ja lähettää viestejä.
Kirjaudu sisäänIlmoituksen metatiedot
Viimeksi muokattu: 17.3.2026 klo 15.54 ・ Ilmoituksen tunnus: 38472667

