Kuvagalleria
(1/2)
huvimaja- varasto
Myydään2 600 €
Kuvaus
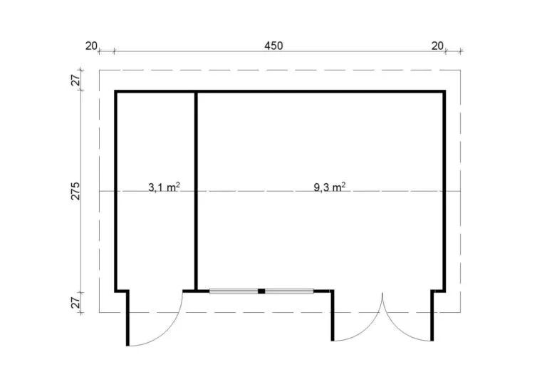
VARASTON LOPPUUN MYYNTIupea mökki moneen käyttöön, 2 osainen, täydellinen puuosatoimitus,sis, ikkunat ovet ,ponttilautalattian ,,,hinta enne 5290€ ja nyt 1 KPL JÄLJELLÄ 2600€ KYSY LISÄÄ 0401616666 tarjous voimassa 10,3
Huom! Painike, joka näyttää koko kuvauksen on pelkästään visuaalinen.
Sijainti
| Ilmoituksen tunnus | 39136012 |
|---|---|
| Viimeksi muokattu | 31.3.2026 klo 17.44 |