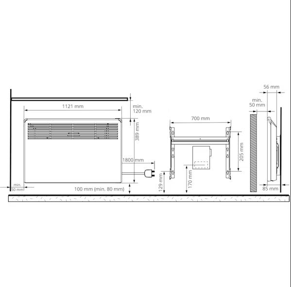
Enston Beta-EP -virtauslämmittimet täyttävät EcoDesing-vaatimukset. Lämmittimet ovat turvallisia, älykkäitä sekä energiatehokkaita. Lämmittimet sopivat niin koteihin kuin vapaa-ajankohteisiin.Turvallisuus: Alhainen pintalämpötila ja ylikuumenemissuojaÄlykkyys: Nopeasti reagoiva lämmityksen ohjaus ja Ensto Heat Control-sovellusEnergiatehokkuus: Lämmittävät huoneilmaa - eivät rakenteita, hyötysuhde lähes 100%. Lepovirtakulutus <0,3WBeta-EP -virtauslämmittimet ovat kiinteästi asennettavia pistotulpallisia malleja. Enston Beta-EP-lämmittimissä on tarkka ja täysin hiljainen elektroninen älytermostaatti. Lämmittimen termostaattia voi ohjata suoraan termostaatista tai erikseen ladattavalla Bluetooth-applikaatiolla (Android ja iOS). Applikaation avulla voidaan seurata energiankulutusta, hallita ja säätää lämmitysaikatauluja esim. loma-ajoilla sekä tarvittaessa tehostaa lämmitystä. Lämmittimeen voi kytkeä rinnakkaislämmittimiä ja sillä voi ohjata langattomasti max.10 Enston Bluetooth-lämmitintä. Asennus- ja käyttöohje
Huom! Painike, joka näyttää koko kuvauksen on pelkästään visuaalinen.