Kuvagalleria
(1/3)
Hirsilato 16m2 75,90/kk!!! kahdella pariovella
Myydään2 390 €
Kuvaus
Nyt kelkat ja mönkijät suojaan ja vielä KOROTTOMALLA rahoituksella!
Tarjous voimassa 31.1.2026 saakka!!!
UUSI 2026 KORKEAMPI MALLI. Uudet mittakuvat päivittyvät myöhemmin.
*Otamme vaihdossa autot, moottoripyörät, koneet, perävaunut, moottorikelkat, vesijetit, sähköpyörät ja veneet jne. Myös useampi ajoneuvo käy vaihdossa kaupan yhteydessä. Tarjoa!
*Meiltä markkinoiden kilpailukykyisimmät rahoitusvaihtoehdot
Hirsilato Suora L Umpiseinä Hirsitalli 16m2 4000x4000mm Puulato 2-Ovella
Upea Suora L Hirsilato sopii loistavasti varastoksi. Tämä piharakennus on suomalainen ja helppo kasata!
S16 on suora- ja umpiseinäinen 16 m2 hirsilato. Se sopii erinomaisesti varastoksi, puiden säilytykseen, heinille, puutarhavälineille, mönkijälle, moottorikelkalle, puutarhakoneille, polkupyörille sekä kausitavaravarastoksi. Hirsiladon oviaukkoa suurentamalla ladosta voidaan tehdä vaikka grillikota. Kaksien pariovien ansiosta saat isotkin tavarat helposti suojaan pihalatoon. Pihalato toimitetaan puuosatoimituksena tilaamaasi osoitteeseen ja se on helppo kasata mukana tulevilla ohjeilla.
Toimitus ei sisällä vesikattolaudoitusta, vesikatemateriaalia, eikä lattiarakenteita (tilattava erikseen). Saatavilla pelti- tai huopakatolla.
Suomalaiset, komeat, kestävät ja kätevät piharakennukset, hirsiladot, pihaladot, pihavarastot ja puuladot pihallesi tai mökille löydät meiltä. Toimenpidelupakuvapaketti hirsiladosta ladattavana sivultamme.
Tuotetiedot:
- Umpiseinämalli (ei rakoja seinässä)
- Suorat päätyseinät ja suorat sivuseinät (42x145mm)
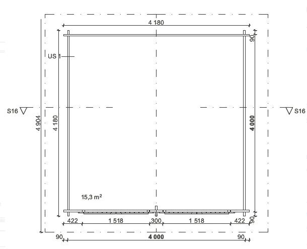
- Pohjan koko: leveys 4000 mm, pituus 4000 mm
- Harjakorkeus 3010 mm
- Sivuseinäkorkeus 1985 mm
- Katon harjapituus 4904 mm (runko)
- Katon lapepituus 2895 mm (runko)
- Katon lapepituus 2920 mm (pelti)
- Perustoimituspakkaus: 1 pkt / n.1100 kg
Toimituspakettiin sisältyy:
- Seinät ja kattokannattajat 42x145 kevythirsi
- Päätyräystäs 42x145
- Sivuräystäät 42x145
- Ovet
- Asennusohje
- Toimenpidelupakuvat
HUOM!! SAATAVILLA MYÖS 270MM KOROTUS SEINIIN JA OVILEHTIIN!! + 495,-
Toimitus ei sisällä:
- Vesikattolaudoitusta / vesikatemateriaalia (Tilattava erikseen)
- Lattiarakenteita (Tilattava erikseen)
Toimitusaika 1-2 viikkoa, riippuen kuljetusliikkeestä
Kysy tarjous kokonaistoimitukselle: Ari 040-6826872, ari.ruonamaa@miukinkone.fi
SUPER RAHOITUSTARJOUS
Takaisinmaksuaika: 40 kk
kuukausierä: 75,99 € (sis.käsittelymaksu)
Käsiraha: 0,00€
Vuosikorko: 0,00 %
Käsittelymaksu: 12,50 €
Avausmaksu 149€
Vaatii hyväksytyn luottopäätöksen.
Huom! Painike, joka näyttää koko kuvauksen on pelkästään visuaalinen.
Lisätietoja
- Kunto
- Uusi
Sijainti
| Ilmoituksen tunnus | 28775949 |
|---|---|
| Viimeksi muokattu | 12.1.2026 klo 14.28 |