Kuvagalleria
(1/4)
Hirsilato 25m2 rakomalli kahdella pariovella
Myydään2 690 €
Kuvaus
Nyt kelkat ja mönkijät suojaan talveksi ja vielä KOROTTOMALLA rahoituksella!!!
JA VIELÄ RAHTIVAPAASTI 30.9 SAAKKA, MANNERSUOMESSA (ilman purkua, purkulisä 315,-)
*Otamme vaihdossa autot, moottoripyörät, koneet, perävaunut, moottorikelkat, vesijetit, sähköpyörät ja veneet jne. Myös useampi ajoneuvo käy vaihdossa kaupan yhteydessä. Tarjoa!
*Meiltä markkinoiden kilpailukykyisimmät rahoitusvaihtoehdot
SUPER RAHOITUSTARJOUS
Takaisinmaksuaika: 40 kk
kuukausierä: 83,50 € (sis.käsittelymaksu)
Luottosumma: 2690,00€
Käsiraha: 0,00€
Vuosikorko: 0,00 %
Käsittelymaksu: 12,50 €
Avausmaksu 149€
Vaatii hyväksytyn luottopäätöksen.
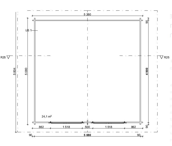
Hirsilato R25 on rakomallinen vino seinäinen 25 m2 piharakennus. Se sopii erinomaisesti varastoksi, puiden säilytykseen, heinille, puutarhavälineille, mönkijälle, moottorikelkalle, puutarhakoneille, polkupyörille sekä kausitavaravarastoksi. Kaksien pariovien ansiosta saat isotkin tavarat helposti suojaan pihalatoon. Pihalato toimitetaan puuosatoimituksena tilaamaasi osoitteeseen ja se on helppo kasata mukana tulevilla ohjeilla.
Toimitus ei sisällä vesikattolaudoitusta, vesikatemateriaalia, eikä lattiarakenteita (tilattava erikseen).
Suomalaiset, komeat, kestävät ja kätevät piharakennukset, hirsiladot, pihavarastot, pihaladot ja puuladot pihallesi tai mökille löydät meiltä. Toimenpidelupakuvapaketti hirsiladosta ladattavana sivultamme.
Tuotetiedot:
- Rakomalli (tuuletusraot seinissä)
- Suorat päätyseinät ja vinot sivuseinät (42x145mm)
- Pohjan koko: leveys 5080 mm, pituus 4900 mm
- Harjakorkeus 3480 mm
- Sivuseinäkorkeus 1840 mm
- Katon harjapituus 5804 mm (runko)
- Katon lapepituus 3856 mm (runko)
- Katon lapepituus 3881 mm (pelti)
- Perustoimituspakkaus: 1 pkt / n.1500 kg
Toimitukseen sisältyy:
- Seinät ja kattokannattajat 42x145 kevythirsi
- Päätyräystäs 42x145
- Sivuräystäät 42x145
- Ovet
- Asennusohje
- Toimenpidelupakuvat
Toimituspaketti ei sisällä:
- Vesikattolaudoitusta / vesikatemateriaalia (Tilattava erikseen, pelti- tai huo
- Lattiarakenteita (Tilattava erikseen, lattiapaketissa varmaan markkinoiden paksuin lattialauta 45x145!!!)
Kysy tarjous kokonaistoimitukselle: Ari 040-6826872, ari.ruonamaa@miukinkone.fi
Toimitusaika 1-2 viikkoa, riippuen kuljetusliikkeestä
Huom! Painike, joka näyttää koko kuvauksen on pelkästään visuaalinen.
Lisätietoja
- Kunto
- Uusi
Sijainti
Ilmoituksen tunnus | 28818985 |
---|---|
Viimeksi muokattu | 4.9.2025 klo 12.11 |