Kuvagalleria
(1/3)
Pihavarasto pulpettikatolla 10,5m2
Myydään1 790 €
Kuvaus
Nyt kelkat ja mönkijät suojaan talveksi ja vielä KOROTTOMALLA rahoituksella!!!
*Otamme vaihdossa autot, moottoripyörät, koneet, perävaunut, moottorikelkat, vesijetit, sähköpyörät ja veneet jne. Myös useampi ajoneuvo käy vaihdossa kaupan yhteydessä. Tarjoa!
*Meiltä markkinoiden kilpailukykyisimmät rahoitusvaihtoehdot
SUPER RAHOITUSTARJOUS
Takaisinmaksuaika: 40 kk
kuukausierä: 59,75 € (sis.käsittelymaksu)
Luottosumma: 1790,00€
Käsiraha: 0,00€
Vuosikorko: 0,00 %
Käsittelymaksu: 12,50 €
Avausmaksu 99€
Vaatii hyväksytyn luottopäätöksen.
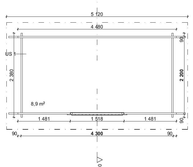
Pihavarasto Lippa M, uusi malli vuodelle 2026 Hirsitalli 19,582 Pulpettikatolla 4550x2320mm
Lippa M on umpiseinäinen ja pulpettikatto mallinen hirsilato. Tämä piharakennus on suomalainen ja helppo kasata! Se sopii erinomaisesti varastoksi, puiden säilytykseen, heinille, puutarhavälineille, mönkijälle, moottorikelkalle, puutarhakoneille, polkupyörille sekä kausitavaravarastoksi.
Suomalaiset, komeat, kestävät ja kätevät piharakennukset, hirsiladot, pihaladot, pihavarastot ja puuladot pihallesi tai mökille löydät meiltä. Toimenpidelupakuvapaketti hirsiladosta ladattavana sivultamme.
Tuotetiedot:
- Pulpettikattomalli
- Suorat päätyseinät ja suorat sivuseinät (42x145mm)
- Pohjan koko: leveys 4550 mm, pituus 2320 mm
- Sivuseinäkorkeus 2563/2025mm
- Katon pituus 3193 mm (runko)
- Katon leveys 5174 mm (runko)
- Perustoimituspakkaus: 1 pkt / n. 800kg
Toimituspakettiin sisältyy:
- Seinät ja kattokannattajat 42x145 kevythirsi
- Päätyräystäs 42x145
- Sivuräystäät 42x145
- Ovet
- Asennusohje
- Toimenpidelupakuvat
Toimitus ei sisällä, jotka voit halutessasi tilata erikseen:
- Vesikattolaudoitusta / vesikatemateriaalia (pelti- tai huopakatto)
- Lattiarakenteita
- Kiinnitystarvikkeet
Kysy tarjous kokonaistoimitukselle: Ari 040-6826872,
ari.ruonamaa@miukinkone.fi
Huom! Painike, joka näyttää koko kuvauksen on pelkästään visuaalinen.
Lisätietoja
- Kunto
- Uusi
Sijainti
| Ilmoituksen tunnus | 28822393 |
|---|---|
| Viimeksi muokattu | 12.1.2026 klo 11.09 |