Kuvagalleria
(1/8)
Vuokrataan liiketila 149 m2 Tikkurila Vantaa
Myydään2 300 €
Kuvaus
Nyt vuokrattavana heti vapaata liiketilaa KOY Tikkurilan Talliosake, liiketila 3.
Vuokrataan vain yritysasiakkaille – vuokraan lisätään ALV 25,5%.
Tikkurilan talliosakkeelta monikäyttöinen ja edustava liiketila.
Tikkurilan Talliosake 1 sijaitsee huippupaikalla lähellä Kehä III:sta sekä Lahdenväylää. Tikkurilan asema on vain kivenheiton päässä.
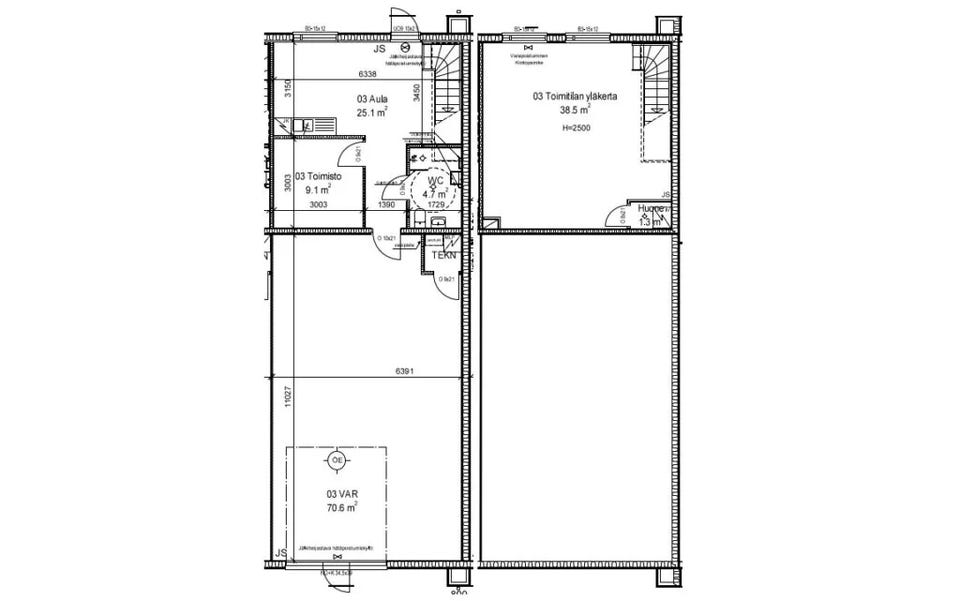
Liiketila käsittää katutasossa sijaitsevan toimiston, taukotilan, keittiön ja suihkullisen wc-tilan, yhteensä n. 39 m² sekä varastotilan 71 m². Toisessa kerroksessa tilava 39 m²:n toimisto. Tilan lattiapinta-ala on 110 m² ja toimistokerroksen 39 m². Yhteispinta-ala 149 m². Tämä kokonaisuus takaa tulevalle toiminnalle käytännölliset ja viihtyisät puitteet.
Sosiaali- ja toimistotiloissa lämmitys maalämpöpumpulla ja varastossa sähkölämmitys. Vuokralainen tekee tilaan oman sähkösopimuksen. Vesi- ja sähkömaksu kulutuksen mukaan. Vakuus kahden kuukauden vuokraa vastaava määrä. Haetaan pitkäaikaista vuokralaista. Luottotiedot tarkistetaan.
Ovimitat: 3,45 (Leveys) 3,90 (Korkeus)
Käyttötarkoitusesimerkkejä:
- varastotila
- pakkaamo
- toimitila
- toimistotila
- show room
Tila ei sovellu autokorjaamoksi eikä autopesulaksi.
Ota yhteyttä. Kerron mielelläni lisää.
Jani Sanevuori
Aluemyyntipäällikkö,
Etelä-Suomi, Vuokrauspalvelu, LVV
jani.sanevuori@talliosake.fi
050 361 4814
Talliosake toimii täysin digitaalisesti alusta loppuun vuokra- tai kauppasopimuksen prosessin aikana.
Huom! Painike, joka näyttää koko kuvauksen on pelkästään visuaalinen.
Sijainti
| Ilmoituksen tunnus | 30481460 |
|---|---|
| Viimeksi muokattu | 18.9.2025 klo 15.53 |