Kuvagalleria
(1/8)
Vuokrataan varastotila 52 m2 Tikkurila Vantaa
Myydään784 €
Kuvaus
LOPPUVUODEN VUOKRAT 0€. Kampanja koskee 23.10.-31.12.2025 välisenä aikana solmittuja uusia vuokrasopimuksia.
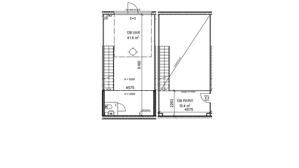
Vuokrattavana. Heti vapaa. KOY Tikkurilan Talliosake 3 monikäyttöinen varasto, autotalli, harraste-, toimitila 139. Tilassa jo valmiina parvi sekä wc. Tilan lattiapinta-ala on 42 m² ja parven 10 m². Yhteispinta-ala 52 m².
Tikkurilan Talliosake 3 sijaitsee lähellä Kehä III:sta ja Lahdenväylää. Lyhyt matka mm. Tikkurilan asemalle.
Talliosakkeet ovat laadukkaita sekä hyvin varusteltuja, soveltuen harraste-, varasto- ja yritystilakäyttöön.
Tila on sähkölämmitteinen. Vuokralainen tekee tilaan oman sähkösopimuksen. Vesi- ja sähkömaksu kulutuksen mukaan. Vakuus kahden kuukauden vuokraa vastaava määrä. Yritysasiakkaille vuokraan lisätään alv 25,5%. Luottotiedot tarkistetaan.
Tilamitat: 9,15 (Pituus) 4,55 (Leveys) 5,00 (Korkeus)
Ovimitat: 3,45 (Leveys) 3,90 (Korkeus)
Käyttötarkoitusesimerkkejä:
- autotalli
- moottoripyörätalli
- mönkijätalli
- varastotila
- harrastetila
- kimppatalli
- toimitila
- yrityksen työtarvikevarasto/kalustovarasto
Tila ei sovellu autokorjaamoksi eikä autopesulaksi.
Ota yhteyttä. Kerron mielelläni lisää.
Jani Sanevuori
Aluemyyntipäällikkö,
Etelä-Suomi, Vuokrauspalvelu, LVV
jani.sanevuori@talliosake.fi
050 361 4814
Talliosake toimii täysin digitaalisesti alusta loppuun vuokra- tai kauppasopimuksen prosessin aikana.
Vuokrattavana myös työ- ja tuotantotiloja. Kysy lisää.
Huom! Painike, joka näyttää koko kuvauksen on pelkästään visuaalinen.
Sijainti
| Ilmoituksen tunnus | 30507711 |
|---|---|
| Viimeksi muokattu | 23.10.2025 klo 15.05 |